*** Bitte Anfragen nur per E-Mail stellen. ***
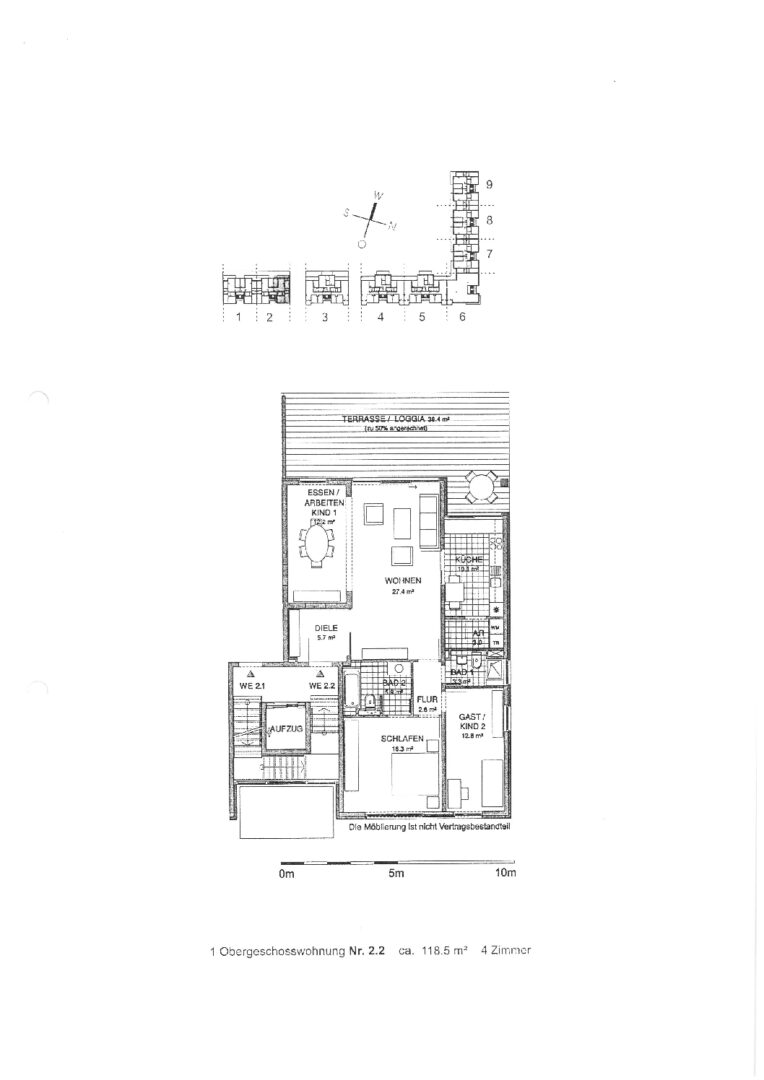
In fußläufiger Lage zur attraktiven Wassergracht des Stadtwaldviertels befindet sich die in moderner Architektur erbaute drei Zimmerwohnung im 1. Stock eines gepflegten Siebenparteienhauses. Die hochwertige Etagenwohnung überzeugt durch eine geräumige Aufteilung und den am Wohnzimmer befindlichen Balkon. Der zukünftige Mieter trägt neben den Betriebskosten für die Erhaltung und Pflege der Wassergrachten, die direkten Kosten für Warmwasserversorgung, Strom und Telekommunikation mit dem jeweils festgelegten Anbieter. Die Immobilie wurde 2005 erbaut und besticht durch ein geschmackvolles Erscheinungsbild.



